
OPEN CALL af Aalborg Kommunes Kunstudvalg
Bygningsintegreret udsmykning i forhal til ny daginstitution i Aalborg Kommune.
Skitseret forslag sendes til kunstudvalgets sekretariat senest søndag 3.marts 2024 kl. 23.59 på email: gitte.friis@aalborg.dk
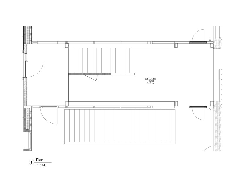
Aalborg Kommune bygger en ny daginstitution i forbindelse med Seminarieskolen, Mylius Erichsens Vej 127, 9210 Aalborg. Daginstitutionen forbindes med Seminarieskolen via en ny forhal med glasvægge til begge sider. Forhallen bliver et centralt ankomstpunkt for ansatte, børn og forældre og er synlig fra vejen. Byggeriet er under opførelse af entreprenørfirmaet JORTON og tages i brug ved årsskiftet 2024/25. Udsmykningen skal kunne udføres og installeres i perioden april til juni 2024 i overensstemmelse med JORTONS arbejdsplan. Man kan læse mere om daginstitutionen på deres hjemmeside Daginstitutionen Isbjørnen (aula.dk)
Aalborg Kommunes Kunstudvalg ønsker en udsmykning af forhallen, der er fast integreret i arkitekturen. Der kan stilles forslag til alle indre overflader såsom loft, gulv, vinduespartier, vinduesglas, trappevanger mm. Der er ingen begrænsninger på materialebrug, men valgte materialer skal være DGNB certificerede og må ikke kunne udgøre en sundhedsrisiko for ansatte og brugere. Rumlige arbejder skal være fast forankrede og upåvirkede af gennemtræk og lignende. Vi opfordrer til at den planlagte brug af rummet ikke påvirkes markant, herunder vedligehold og rengøring af arealet. Værker skal så vidt muligt være vedligeholdelsesfrie og bestandige. Se og download visualiseringer af rummet og dets omgivelser på Kunstudvalget - Aalborg Kommunes Kunstfond
Ved download vær opmærksom på følgende: Visualiseringerne kaldet ”Konkurrence materiale” er fra arkitekternes vinderforslag. Visualiseringerne kan afvige fra den kommende bygning, da den endnu ikke er realiseret. Det er helt normalt, at bygninger afviger i detaljer fra arkitekternes forslag. Der bliver ikke lavet nye visualiseringer efter eventuelle ændringer. Der installeres en elevator til gangbesværede ved siden af trappen i forhallen. Mellem bilagene findes beskrivelse af elevators udseende og placering. Bilagene kaldet ”computer model” er visuel støtte tiltænkt kunstnerne til at forstille sig forhallen. Computermodellerne indeholder ikke de udendørs arealer. Angående udearealerne henvises til landskabsarkitektens plantegninger, der angiver overflader og belægninger.
Procedure: Vi ønsker i første omgang kun at modtage skitserede forslag, inklusive en beskrivelse af ideerne bag forslaget, samt en præsentation af kunstneren i form af cv og tidligere værker. Enkelte gode værker er bedre end mængder af forskellig kvalitet. Forslaget skal indsendes i tekst eller billedfiler der kan åbnes i standard programmer. Skitserne kan evt. laves ud fra arkitektens visualiseringer.
Af de indkomne forslag, udvælges 3 kandidater der får 4 uger til at lave en præciseret visualisering og model af forslaget. De 3 præciserede forslag fremvises for et bedømmelsesudvalg 8. april 2024 og honoreres efterfølgende med en skitsesum på 20.000 kr. hver. Det vindende forslag har et budget på 200.000 kr. eksklusive moms, til at realisere udsmykningen for. Budgettet omfatter alle udgifter i forbindelse med udsmykningen og installationen af denne, samt kunstnerens eget honorar. Udsmykningen udføres som en total entreprise for kunstneren og er underlagt reglerne for DGNB certificering. De nærmere detaljer for udbetalingen af beløbet aftales med den valgte kunstner. Kunstneren forpligter sig til at færdiggøre og installere udsmykningen i juni 2024.
Bedømmelsesudvalget består af en kunstfaglig repræsentant fra Aalborg Kommunes Kunstudvalg, ledelses- og forældrerepræsentanter fra institutionen, en repræsentant fra entreprenøren JORTON, en repræsentant fra Krogh Madsen Arkitekter A/S og en repræsentant fra AK Bygninger. Entreprenør og bygherre deltager primært for at kunne vurdere forslagenes praktiske udførelse samt tidsplanen.
Aalborg Kommunes Kunstudvalg har bl.a. til formål at stimulere og understøtte lokale kunstneres virke. Der vil derfor blive lagt vægt på følgende:
Kunstfaglige spørgsmål rettes til kunstudvalgets repræsentant på mail: peter.max.jakobsen@gmail.com
Yderligere spørgsmål rettes til Kunstudvalgets sekretær Gitte Friis Therkildsen: gitte.friis@aalborg.dk